









WOHNEN STATT PARKEN – Konzepte für das Wohnen mit Kindern in Horn-Lehe (Alvar Aalto Preis 2025)
In Deutschland leben 90 Prozent der Kinder in der Stadt, 60 Prozent davon in Groß- und Mittelstädten. Das tradierte Bild der Familie, die in das Haus mit Garten in der Vorstadt oder auf dem Land zieht, entspricht längst nicht mehr überall der Wirklichkeit. Auch die Struktur von Familien hat sich geändert. Im Bestand der GEWOBA gibt es eine große Zahl an 3-Zimmer-Wohnungen, die in den 1950er-1970er Jahren entstanden und die für den damals demographischen „Normalfall“ der vierköpfigen Vater-Mutter-Kinder Familie konzipiert waren. Durch demographische Veränderungen und eine größere Diversität an Familienkonstellationen ergeben sich nun auch wesentlich diversere Bedarfe und Nachfragen nach anderen Wohnungszuschnitten.
Auch die Lebensbedingungen von Kindern in der Stadt, im direkten Wohnumfeld und dem weiteren städtischen Kontext haben sich stark verändert und verändern sich weiter. Vielfältige räumliche und soziale Faktoren spielen dabei eine Rolle: ein verstärkter Medienkonsum, der Verlust von informellen Frei- und Bewegungsflächen, aber auch die Ängste von Eltern. Dies hat großen Einfluß auf die Lebensqualität und Entwicklung von Kindern und es ergeben sich Fragestellungen, die bei der Konzeption von Wohnraum für Kinder relevant sind: Wo spielen Kinder, wo können sie sich bewegen, wieviel Sicherheit wird benötigt, welche Spiel-, aber auch Rückzugsangebote kann es in welchen Bereichen geben. Kinderräume sind vielschichtig und vielfältig, sie reichen beispielsweise von normierten Spielplätzen- bzw. -orten bis hin zu unbekannten, verwunschenen Plätzen oder Räumen. Kinderräume können dabei vereinfacht in „Räume für Kinder“ und „Räume der Kinder“ differenziert werden. Während „Räume für Kinder“ eher vordefiniert / fremdbestimmt sind, sind „Räume der Kinder“ informell und kindzentriert (vgl. R. Kogler, 2019).
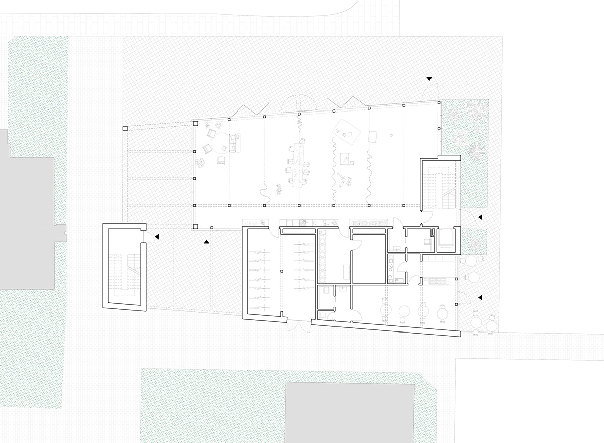
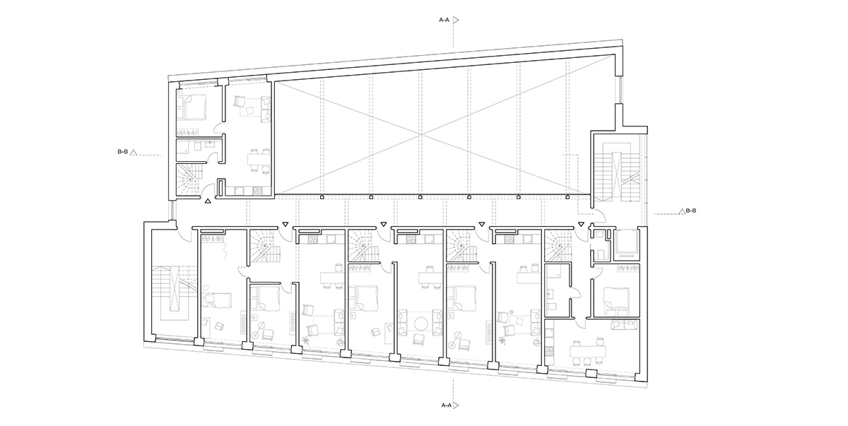
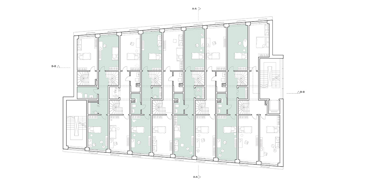
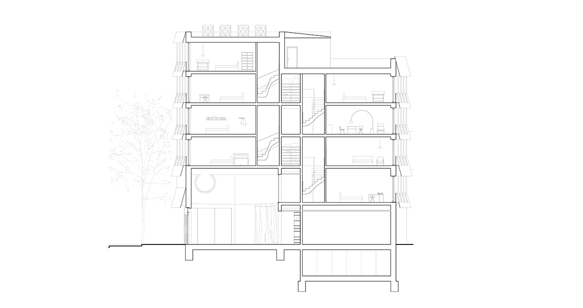
Das Thema der Räume für/der Kinder soll als Kern der Aufgabe des diesjährigen Alvar Aalto Preises vom privaten Raum in der Wohnung über die gemeinschaftlichen Bereiche im Haus bis hin zu den Freiräumen auf dem Grundstück und dem „Auftritt“ des Gebäudes im Stadtraum reflektiert und räumlich interpretiert werden.
Konkret soll unter dieser Fragestellung ein Grundstück in der Spittaler Straße in Bremen Horn-Lehe bearbeitet werden, auf dem sich momentan noch eine Parkpalette befindet. Neben dem neuen Gebäude, dass hier konzipiert wird, soll das gesamte Ensemble mitgedacht und gegebenfalls freiräumlich und durch kleine bauliche Änderungen modifiziert werden, so dass Familien in diesem Umfeld gut leben können.
Dozenten
- Prof. Dr.-Ing. Cyrus Zahiri
- Prof. Maria Clarke